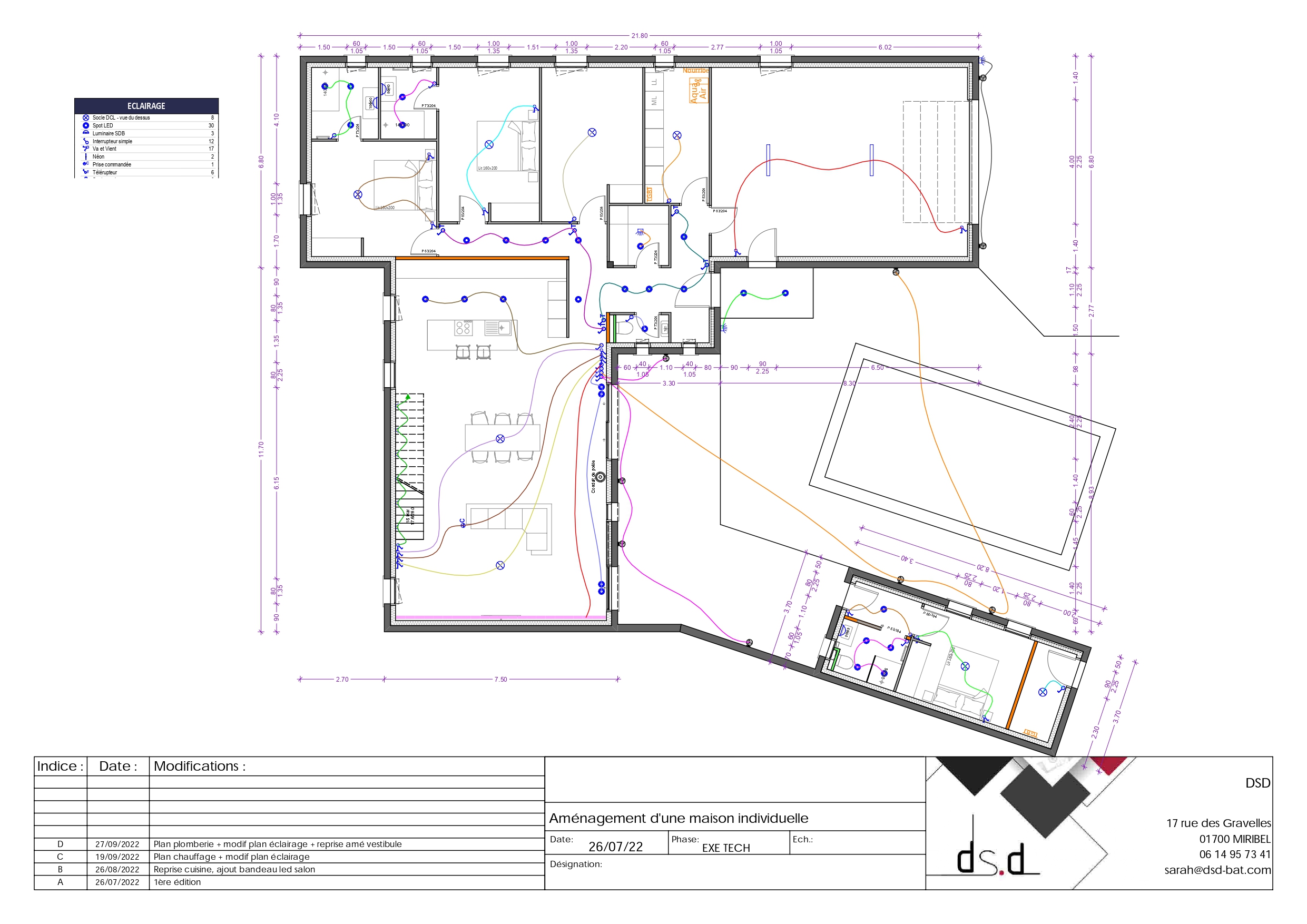
Réalisation de plans électriques (luminaires et prises) pour une maison individuelle en auto-construction.
Phase EXE
Réalisé sur le logiciel Allplan
Après 12 années d’expériences au service des architectes, constructeurs, bureaux d’études fluides et artisans, j’ai créé DSD en 2016 pour proposer mes services de dessinatrice en bâtiment. Mon bureau se situe à Miribel, à côté de Lyon, en région Rhône-Alpes, où j’exerce en tant que Dessinatrice en bâtiment indépendante Tous Corps d’État.